Autres informations online

 Interlocuteur
     Team cages d'ascenseur

 Interlocuteur Tavel
 Interlocuteur Veltheim
Fiche technique en fichier PDF
Objets de référence

 

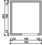
Typ: 160/180/12 cm (dimensions intérieures) 

Cage d'ascenseur "type"

Interlocuteur département cages d'ascenseurInterlocuteur TavelInterlocuteur VeltheimPDF-DownloadObjets de référence

Elément en 1 partie


Elément en 2 parties verticales

Elément en 2 parties horizontales

Elément en "U"


Exécution en
béton normal B 40/30 ou
béton léger LB 30/20
Dimensions    
dim. intérieures
160/180
 cm
épaisseur de la parois

12

 cm
hauteur maximale
318
 cm
     
Indications de poids
 
kg par mètre courant
élément en 1 partie
kg/m
  B 40/30
2180
 kg
LB 30/20
1530
 kg
élément en 2 parties verticales
kg/m
  B 40/30
1090
 kg
LB 30/20
763
 kg
élément en "U"
kg/m
  B 40/30
1704
 kg
LB 30/20
1192
 kg
Tolérance de poids pour exécution en béton léger: ± 7%
Aspect de la surface
intérieur et extérieur lisse de décoffrage
tous les angles chanfreinés (1/1cm)
Déduction pour évidement de porte
évidement de porte supposé
105/225
 cm
béton normal B 40/30
709
 kg
béton léger LB 30/20
500
 kg

les montants de porte ont un fruit de 10mm afin de permettre le décoffrage